• 1-819-364-7270
  • This email address is being protected from spambots. You need JavaScript enabled to view it.
  • Mon - Thu : 7h15–12h00, 13h00–16h30, Fri : 7h15–12h30

PROPVA - Centre de perçage automatisé

PreviousPreviousPrevious
propva_1000x667
NextNextNext
propva_1000x667 compact_automated_line_aks6600_propva_sv840 explication_percage_carre
Weight: 7850 kg
Brand: Protomach GML inc.
                                                  Pression d'Air
Voltage
7 Bar
400 VAC, 30 Amp, 3 Phase

The add to cart button will appear once you select the values above

 

La PROPVA est un équipement conçu pour tirer profit du temps de refroidissement post-soudage pour effectuer des perçages de positionnement de la quincaillerie.

 

Son perceur principal est capable d’accepter deux outils différents et de pivoter sur 360 degrés, permettant d’effectuer des perçages sur les 4 côtés du carré soudé, à l’intérieur comme à l’extérieur.

PROPVA

 

Option pour travailler en double zone en alternance pour accepter 2 volets.

PROPVA volets en double

 

Fabriqué avec des composantes nord-américaine et système de contrôle par Protomach GML.

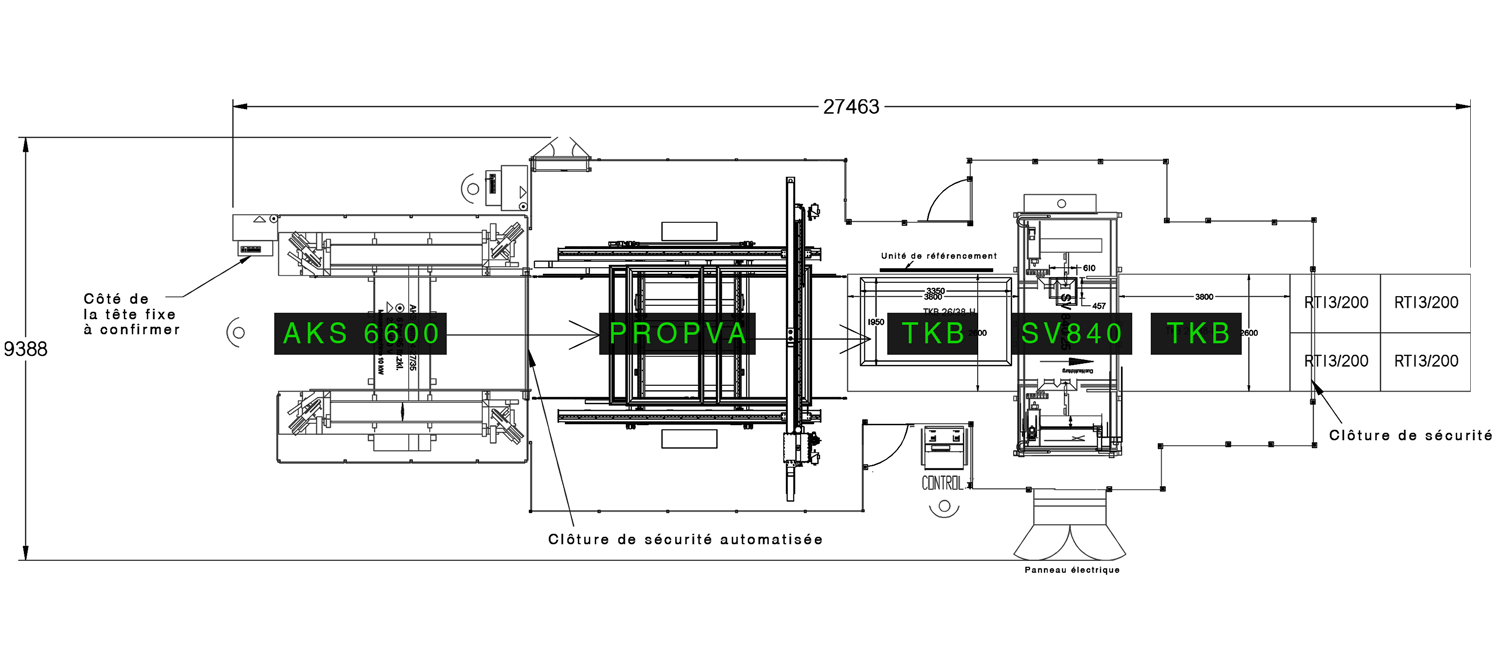
Présenté ci-dessous intégré dans une ligne automatisée URBAN.

Présenté intégré dans une ligne automatisé Urban

 

Conçue pour s’insérer entre la soudeuse et un nettoyeur de coins, la PROPVA peut aussi être utilisé en mode autonome. Présenté ci-dessous avec une soudeuse verticale 4 têtes et un nettoyeur de coin 2 têtes URBAN.

Présenté avec une soudeuse verticale 4 têtes et un nettoyeur de coin 2 têtes URBAN.

 

Capable d’accepter des pièces de 3000mm de large sur 4000mm de long, avec une hauteur maximale de

Un serrage contrôlé aux quatre coins permet de tenir solidement le profilé sans le déformer.

Hauteur maximale (théorique) d’environ 300mm (à confirmer)


Options non incluses (Prix sur demande)

  • Option pour travailler en alternance, entre 2 zones afin d'accepter 2 volets soudés
  • Outils pour percer les trous pour les meneaux
  • Outil vertical

 

PROPVA à partir de la minute 2:00

 

List of the comments:
No comments have been posted yet.
Vote:

Give your advice about this item:

Username:
E-mail:

Related products

Please publish modules in offcanvas position.